Segment w budynku B11 (lokal 2) o powierzchni użytkowej 73,24 m² rozłożony na dwóch kondygnacjach.
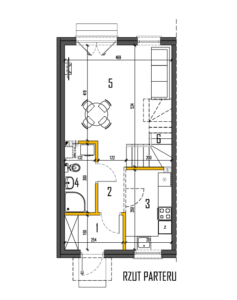
Parter (37,16 m²):
Przedsionek 3,81 m², hol 2,42 m², kuchnia 6,95 m², łazienka 3,88 m², salon 20,10 m².
Piętro (36,08 m²):
Hol 3,43 m², gabinet 8,12 m², garderoba 10,12 m², łazienka 4,00 m², pokój 10,41 m².