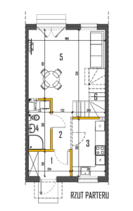
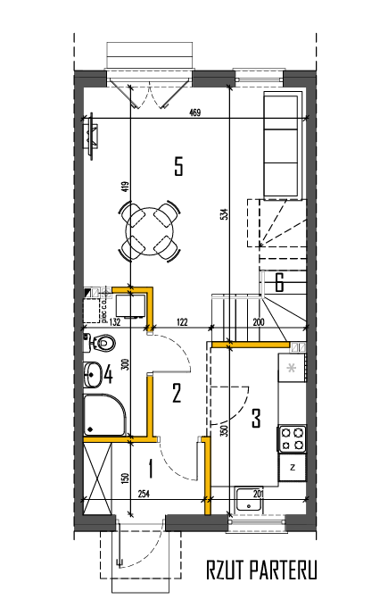
Segment w budynku B10 (lokal 2) o powierzchni użytkowej 73,24 m² rozłożony na dwóch kondygnacjach.

Parter (37,16 m²):
Przedsionek 3,81 m², hol 2,42 m², kuchnia 6,95 m², łazienka 3,88 m², salon 20,10 m².

Piętro (36,08 m²):
Hol 3,43 m², gabinet 8,12 m², garderoba 10,12 m², łazienka 4,00 m², pokój 10,41 m².

Parametry lokalu

Numer B10/L2
Metraż 73,24 m²
Pokoje 4
Piętro Parter
Status Dostępny
Ogródek 42,00 m²
Parking tak
Cena brutto 560 000 zł
Cena za m² 7 646,10 zł

Ostatnia aktualizacja: 19.03.2026

Zapytaj o lokal

Skontaktuj się z nami, aby uzyskać szczegółowe informacje lub umówić się na prezentację.

578 705 777 Zapytaj o lokal

Pon-Pt 9:00-17:00, Sob 10:00-14:00

← Wróć do listy lokali
Zadzwoń Zapytaj o lokal
Przegląd prywatności

Ta strona internetowa używa plików cookies, abyśmy mogli zapewnić Ci jak najlepsze wrażenia z korzystania z niej. Informacje o plikach cookies są przechowywane w Twojej przeglądarce i służą m.in. do rozpoznawania Cię przy kolejnych wizytach oraz pomagają naszemu zespołowi zrozumieć, które sekcje strony są dla Ciebie najbardziej interesujące i przydatne.